La Cala De Mijas
La Cala de Golf 359

€ 1 292 000

Woonopp.
598 m²
Slaapkamers
4
Badkamers
4
Tuin
Ja

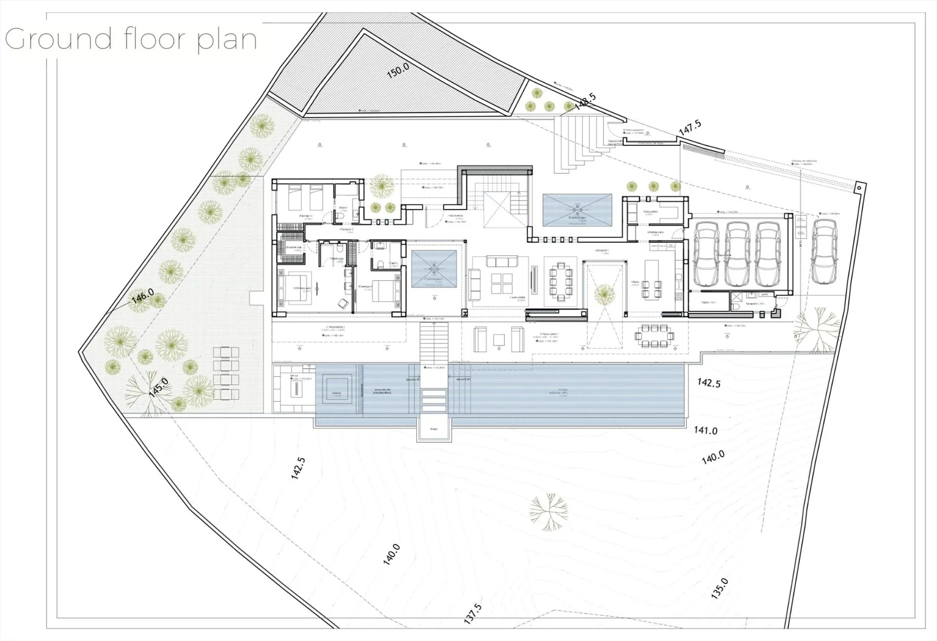
Deze eigentijdse off-plan villa zal bestaan uit inkomhal, gastentoilet, trappenhal met direct zicht op het zwembad en tuin.

De ruime leefruimte geeft uit op de terrassen en heeft een open keuken, op dit verdiep vind je ook de hoofdslaapkamer met ensuite badkamer. Verder zijn er nog 2 slaapkamers elk met hun ensuite badkamer en terras.
In de kelderverdieping bevindt zich de wasruimte, een badkamer en een ruimte voor de
zwembad installaties, er is nog ruimte om verdere slaapkamers met badkamers te maken.

Bouwtijd 8 tot 19 maanden. Project en vergunningen zijn al goedgekeurd dus constructie kan
bijna onmiddellijk beginnen.

Inbegrepen zijn ook: alarm, kluis, vloerverwarming in de badkamers, dubbele beglazing, tegels
van Grespania, privé zwembad, elektrische garagedeur en nog veel meer .... Inbegrepen in de
prijs zijn: plot, plannen, licenties en volledige constructie.

Foto's van keuken en badkamers dienen alleen ter illustratie. Keuzemogelijkheden en eindbeslissing zoals de klant het wenst.

Garanties
- Structuur: 10 jaar
- Installaties: 3 jaar
- Afwerking: 2 jaar

Interesse in deze luxueuze en moderne villa gelegen op een toplocatie? Maak dan zeker een afspraak op 09 310 77 07 of mail naar info@woonhoekvastgoed.be.

Algemeen

Adres:La Cala de Golf 359
La Cala De Mijas
Referentie:21/0101
Vraagprijs:€ 1.292.000
Type:Villa
Beschikbaar vanaf:Bij oplevering
Ligging:Vrij uitzicht, Residentieel, Kust
Perceeloppervlakte:1.866 m²
Bewoonbare opp.:598 m²
Type constructie:Traditioneel
Bouwjaar:2021
Algemene staat:Luxe-afwerking

Indeling

Kamers:8
Slaapkamers:4
Badkamers:4
Tuin:Ja
Tuin oriëntatie:Zuid
Tuin kwaliteit:Verzorgd
Garage Types:Carport
Parking Types:Privé

Comfort

Comfort:Ventilatiesysteem
Raamwerk:Aluminium
Dak:Plat dak
Beglazing:Hoogrendementsglas, Superisolerend
Verwarming:Vloerverw. geheel, Warmtepomp
Verwarmd water:Warmtepomp
Isolatie:Volledig geïsoleerd

Documenten

La Cala De Mijas
La Cala de Golf 359

€ 1 292 000


U moet akkoord gaan met het privacybeleid van deze website
* Verplicht in te vullen
La Cala De Mijas
La Cala de Golf 359

€ 1 292 000

La Cala De Mijas
La Cala de Golf 359

€ 1 292 000