€ 149 000
Exclusieve bouwopportuniteit in het hart van Hofstade (Aalst)
Bent u op zoek naar een centraal gelegen woning voor het realiseren van uw eigen BEN-woning op een toplocatie? Dan biedt deze eigendom in Hofstade (Aalst) een uitzonderlijke kans.
Gelegen in het centrum en strategisch gepositioneerd binnen de driehoek Gent – Antwerpen – Brussel, geniet u hier van een uitstekende bereikbaarheid via de E17, E40 (Gent-Brussel) en de N406. Een ideale combinatie van mobiliteit en wooncomfort.
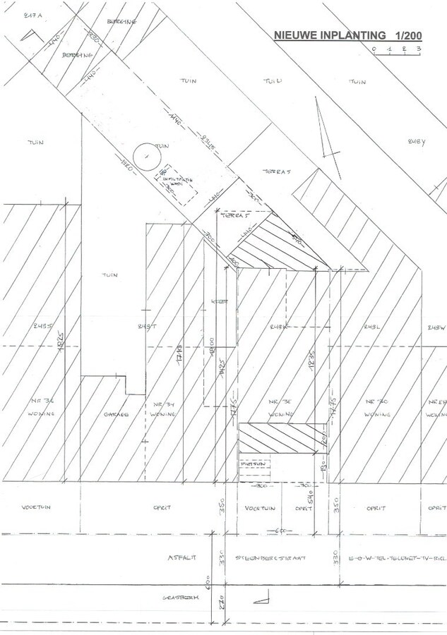
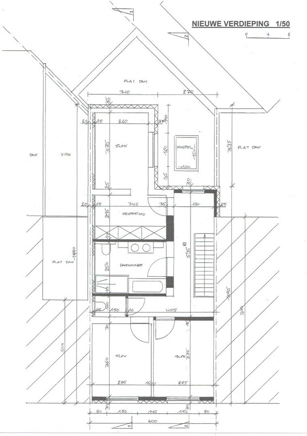
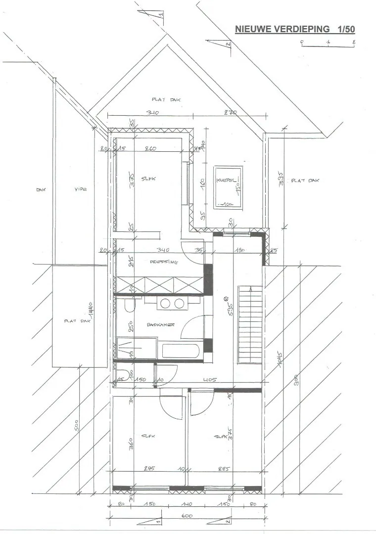
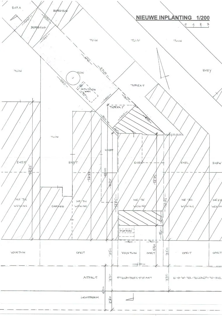
Het perceel heeft een grondoppervlakte van 209 m² en een straatbreedte van 6 meter, wat tal van architecturale mogelijkheden biedt. U kan bouwen tot 14 meter diepte, waardoor u een ruime, hedendaagse nieuwbouwwoning kan realiseren volledig afgestemd op uw wensen.
Een bijzonder sterke troef is dat er geen bouwverplichting geldt. U beslist zelf wanneer en hoe u uw project wenst te ontwikkelen, volledige vrijheid en flexibiliteit staan hier centraal.
Troeven van deze eigendom
- Toplocatie in centrum Hofstade
- Strategische ligging met vlotte verbindingen (E17, E40, N406)
- Perceel van 209 m² met 6 meter straatbreedte
- Bouwmogelijkheden tot 14 meter diepte
- Geen bouwverplichting, renovatieverplichting is wel van toepassing
Een zeldzame opportuniteit voor wie toekomstgericht wil investeren of bouwen op een gegeerde locatie.
Wij begeleiden u graag bij het realiseren van uw woonproject.
Interesse in wat deze woning te bieden heeft? Neem dan snel contact op via 09 310 77 07 of info@woonhoekvastgoed.be.
Algemeen
| Adres: | Steenbergstraat 32 Hofstade |
| Referentie: | 25/134 |
| Vraagprijs: | € 149.000 |
| Type: | Woning |
| Beschikbaar vanaf: | Bij akte |
| Ligging: | Residentieel, Gemeente |
| Perceeloppervlakte: | 209 m² |
| Perceelbreedte: | 6 m |
| Type constructie: | Traditioneel |
| Bouwjaar: | 1947 |
| Gevelbreedte: | 6 m |
| Algemene staat: | Te renoveren |
Indeling
| Tuin: | Ja |
| Parking: | 2 |
| Parking Types: | Privé |
Comfort
| Snelweg: | Ja - op 1500 m tot 2000 m |
| Bushalte: | Ja - op minder dan 500 m |
| Winkel: | Ja - op 500 m tot 1000 m |
| School: | Ja - op 500 m tot 1000 m |
| Kinderopvang: | Ja - op 500 m tot 1000 m |
| Bank: | Ja - op 500 m tot 1000 m |
| Ontspanning: | Ja - op 500 m tot 1000 m |
| Restaurant: | Ja - op 500 m tot 1000 m |
Wettelijke gegevens
| Niet geïndexeerd K.I.: | € 275 |
| Kadastrale benaming: | AALST 5 AFD HOFSTADE sectie C |
| Kadastrale Nummers: | 0249KP0000 |
| Kadastrale Oppervlakte: | 209 m² |
| EPC klasse: | F |
| Renovatieplicht: | Ja |
| Ruimtelijke Ordening: | In aanvraag |
| Stedenbouwkundige vergunning: | Ja |
| Voorkooprecht: | Neen |
| Dagvaarding en herstelvordering: | Geen rechterlijke herstelmaatregel of bestuurlijke maatregel opgelegd |
| Overstromingsgevoelig: | Geen overstromingsgevoelig gebied |
| Overstromingsgebied: | Geen afgebakende zones |
| Overstromingskans perceel (P-score): | A |
| Overstromingskans gebouw (G-score): | A |
| Erfgoed: | Geen beschermd erfgoed |
| Deze eigendom kan onderhevig zijn aan de renovatieverplichting die door de Vlaamse overheid wordt opgelegd voor residentiële gebouwen. Consulteer voor meer informatie de website van het Vlaams Energie- en Klimaatagentschap via https://www.vlaanderen.be/een-woning-kopen/renovatieverplichting-voor-residentiele-gebouwen | |